PLOTS FOR SALE - COMING SOON
BASED IN
SITE AREA
STARTING FROM
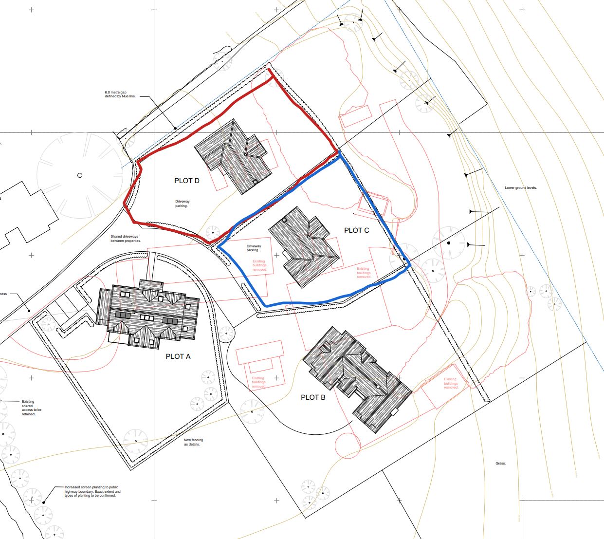
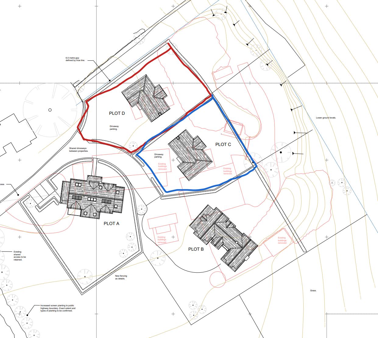
Wassalls is set overlooking the South Down national park. There are four in total plots with the current owners taking two for family. The other two remaining plots are extremely rare in the Meon Valley area.
Planning permission is currently being finalised but we expect to be able to share the final decisions soon.
So now is the time to get in touch to register your interest.
Plots 'D' and 'C' are the ones available for sale.
We have submitted plans for the full and final development. You can find out more about the stages of planning by visiting Winchester Planning Portal and searching the following references. 25/01708/FUL, 20/00449/FUL, PP-14255647.
Please also just ask us by enquiring below.
Fill in the form for more information and a site visit


